
In Construction
Strand Engineering prepared Precise Grading Plans, Utility Plans, and Water Quality Management Plan for a new 10,900 SF Worship Center on this existing church campus which included parking lot revisions, new outdoor gathering areas, and new water, sewer, and storm drainage lines. Stormwater quality is being accomplished with an underground retention tank, pump, and Contech MWS Bio-Filtration unit.

RECENTLY PERMITTED
Strand Engineering prepared Grading Plans, Utility Plans, and a Low Impact Development (LID) Plan for this conversion of an existing Office Building to Self-Storage and Retail in Van Nuys, CA. LID compliance is being met with a MaxWell IV drywell.

IN CONSTRUCTION
This church expansion project includes a new outdoor gathering area and 48-stall parking lot expansion. Strand Engineering is prepared the Preliminary Grading Plans, Preliminary Water Quality Management Plan and led the entitlement process which include a Conditional Use Permit. Strand Engineering prepared the Precise Grading Plans and Final WQMP. Water Quality features include a detention basin and Contech MWS Bio-Filtration unit.

RECENTLY PERMITTED
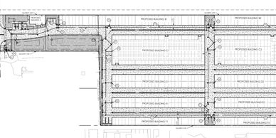
Strand Engineering prepared Precise Grading Plans, Water Quality Management Plan and Hydrology Study for this 8 AC Self-Storage Project including 10 buildings totaling 107,000 SF of storage, 1,365 SF office building, and covered RV parking for 150 vehicles.

IN DESIGN
Strand Engineering is preparing precise grading plans and a Low Impact Development Plan (LID) for this 6-story, 300,000 square foot self-storage building in Inglewood, CA. The project includes an underground detention basin and bio-filtration system to mitigate stormwater runoff, new sewer and water services.

IN DESIGN
Strand Engineering is preparing Precise Grading Plans for ADA upgrades for this Tennis Center in Irvine, CA. Upgrades including modifications to the existing parking lot, addition of accessible ramps, and replacement of existing pathways. Project improvements are subject to NPDES requirements and a Water Quality Management Plan (WQMP) is being prepared to mitigate project impacts.

RECENTLY COMPLETED
Strand Engineering prepared Precise Grading Plans for this expansion that includes removal of two single-story storage buildings and the construction of a new three-story self-storage building in Alhambra, CA. Additional improvements include reconfiguration of the parking lot and a new office/residence building.
Strand Engineering provided Civil Engineering for this Carwash/Retail Development. The project includes a single tunnel car wash, covered vacuums, and a detached 7,500 SF multi-tenant commercial building, and a 4,000 SF Storage Building. Strand Engineering prepared the WQMP, SWPPP, and obtained a grading permit with the City of Victorville and and encroachment permit with Caltrans for the project frontage on State Route 18 (Palmdale Road).
Strand Engineering prepared construction documents, WQMP, and SWPPP for this Drive-Thru restaurant on Topaz Road in Victorville, CA. The project includes an underground retention basin to infiltrate stormwater. The exterior shell is complete and ready for leasing.